Mieszkanie PREMIUM Węglinek, ul. Jemiołuszki

Mieszkanie na sprzedaż
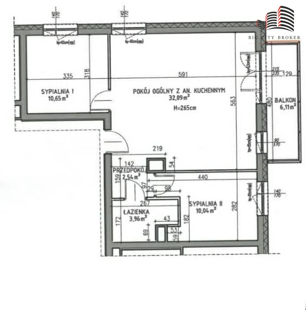
832 000,00 PLN , Pow. 59,28 m2
Drukuj ofertę
Drukuj ofertę
Typ nieruchomości:
Mieszkanie
Powierzchnia:
59,28 m2
Typ transakcji:
sprzedaż
Liczba pokoi:
3
Lokalizacja:
Lublin Węglin , Jemiołuszki
Rok budowy:
2023
Piętro:
3 na 3
Numer oferty:
576929
Cena za m2:
14 035,09 PLN
Na sprzedaż  mieszkanie o wysokim standardzie, położone na 3. (ostatnim) piętrze przy
ul. Jemiołuszki, w zielonej części dzielnicy Węglinek.

Lokal łączy komfort codziennego życia z estetyką i funkcjonalnością dobrze zaprojektowanej przestrzeni.

Najważniejsze cechy:
- przestronny salon z aneksem kuchennym, zabudowa wykonana   przez stolarza,
- ruchoma wyspa - daje możliwość aranżacj w własnym stylu,
- 2 sypialnie,
-  łazienka z WC
- korytarz z zabudową (pralka i suszarka wkomponowane w meble),
- duży balkon 6,11 m².
- kompletny sprzęt AGD.
- klimatyzacja 

Wszystkie zabudowy stolarskie, wysokiej jakości materiały, dopracowane detale i harmonijna kolorystyka tworzą wnętrze eleganckie, bardzo jasne i  „ciepłe” (ekspozycja północno-wschodnia), wykończone w spójnym, nowoczesnym stylu.
Dużym atutem jest otwarcie na zieleń i stary las.Co istotne — zgodnie z warunkami zabudowy teren przed budynkiem nie zostanie już zabudowany, co gwarantuje zachowanie widoku
i przestrzeni w przyszłości.

Dodatkowo:
- komórka lokatorska 1,85 m² (dodatkowa opłata 8 000 zł)
- ostatnie piętro - brak sąsiadów nad mieszkaniem.
- miejsce postojowe wewnętrzne ( dodatkowa opłata 80 000 zł)
- osiedle monitorowane

Węglinek to spokojna, nowoczesna dzielnica z dużą ilością zieleni i dobrą infrastrukturą.
W pobliżu tereny spacerowe, sklepy, usługi oraz wygodny dojazd do centrum.

Mieszkanie dla osób, które szukają jakości, światła i trwałej wartości - również w kontekście widoku i otoczenia.

CENA PODLEGA NEGOCJACJI !

Serdecznie zapraszam do kontaktu w celu uzyskania dodatkowych informacji oraz umówienia się na prezentację.

Kontakt
Marzena Stojak
tel. 609302148
m.stojak@bigcitybroker.pl

Treść niniejszego ogłoszenia nie stanowi oferty handlowej w rozumieniu Kodeksu Cywilnego. Treść ma charakter informacyjny i zalecamy ich osobistą weryfikację.


Nieprawidłowy adres E-mail