Mieszkanie A2 w segmencie Q4- 121 m2, ul Kwarcowa

Mieszkanie na sprzedaż
1 197 000,00 PLN , Pow. 121 m2
Drukuj ofertę
Drukuj ofertę
Typ nieruchomości:
Mieszkanie
Powierzchnia:
121 m2
Typ transakcji:
sprzedaż
Liczba pokoi:
4
Lokalizacja:
Lublin Węglin
Rok budowy:
2026
Piętro:
1 na 1
Numer oferty:
755796
Cena za m2:
9 892,56 PLN

Q4 - Energooszczędne mieszkania przy ul. Kwarcowej - tylko 4 segmenty

Przedstawiam wyjątkową propozycję nowoczesnych, energooszczędnych domów w inwestycji
Q4 przy ul. Kwarcowej.
Kameralny projekt obejmuje zaledwie cztery segmenty, wykonane w technologii prefabrykowanych ścian keramzytowo-betonowych - trwałej, ciepłej i cenionej za szybkość oraz jakość wykonania.
To połączenie nowoczesnej architektury typu „nowoczesna stodoła” z praktycznymi rozwiązaniami, które realnie podnoszą komfort życia.
Budynki powstają tuż przy osiedlu, dzięki czemu masz w zasięgu ręki okoliczną infrastrukturę, a jednocześnie korzystasz z przywilejów własnego mieszkania/domu z ogródkiem , garażem  i niezależnym  wejściem.
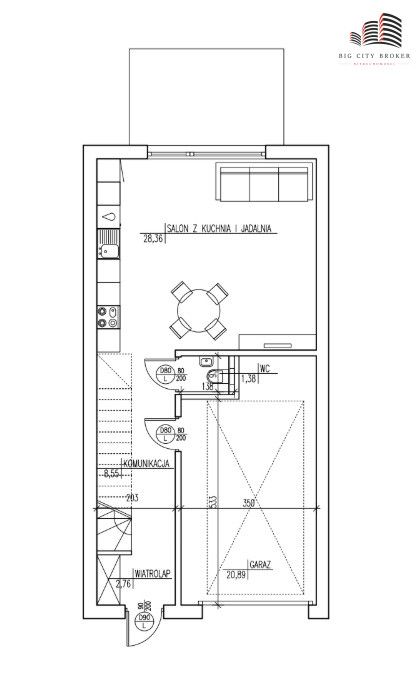
Każdy lokal ma ok. 121 m² powierzchni całkowitej, w tym ok. 100 m² powierzchni użytkowej i został zaprojektowany z myślą o komforcie oraz oszczędności energii.

W standardzie otrzymujesz m.in.:
- rekuperację (wentylacja z odzyskiem ciepła),
- klimatyzację we wszystkich pokojach,
- system monitoringu,
- inteligentny system zarządzania (smart home).

W skład lokalu wchodzą:
Parter:
- salon z aneksem kuchennym,
- toaleta gościnna,
- hol,
- garaż jednostanowiskowy,
- miejsce parkingowe przed budynkiem.
Piętro:
- 3 sypialnie,
- łazienka z toaletą.

Dodatkowo: istnieje możliwość podzielenia głównej sypialni na dwa mniejsze pokoje (ok. 8,5 m² każdy) - idealne rozwiązanie np. dla rodziny z dziećmi lub pod biuro.

Każdy z domów może zostać zakupiony przez obcokrajowców bez konieczności uzyskiwania zgód ministerstwa.

Planowany termin zakończenia inwestycji: IV kwartał 2026
Zapraszam na spotkanie - chętnie przedstawię szczegóły inwestycji i dostępnych segmentów.

Sprzedaż | Biuro Dewelopera BIG CITY BROKER
Marzena Stojak
tel. 609 302 148
e-mail: m.stojakbcb@gmail.com
Deweloper: Kwarcowa Spółka z ograniczoną odpowiedzialnością
http://www.kwarcowa.pl 

Treść niniejszego ogłoszenia nie stanowi oferty handlowej w rozumieniu Kodeksu Cywilnego. Ma charakter informacyjny i zalecamy jej osobistą weryfikację.
Wizualizacje mają charakter poglądowy. Wygląd budynków oraz zagospodarowanie terenu mogą ulec zmianie na etapie realizacji inwestycji.

Nieprawidłowy adres E-mail