Felin / Mieszkanie 40m2 / Dwa pokoje / Nowe

Mieszkanie na sprzedaż
395 933,00 PLN , Pow. 40,86 m2
Drukuj ofertę
Drukuj ofertę
Typ nieruchomości:
Mieszkanie
Powierzchnia:
40,86 m2
Typ transakcji:
sprzedaż
Liczba pokoi:
2
Lokalizacja:
Lublin Felin , Generała Witolda Urbanowicza
Rok budowy:
2027
Piętro:
1 na 3
Numer oferty:
410591
Cena za m2:
9 689,99 PLN
BIURO SPRZEDAŻY DEWELOPERA

Tel. : 533 323 295
E-mail : p.maciag@bdewelopera.pl


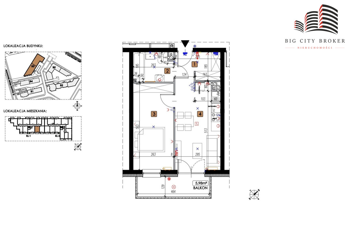
Dwa pokoje z balkonem | Nowe osiedle | Felin

Mieszkanie M21, piętro pierwsze, klatka I, blok B3

Opis

Na sprzedaż nowe, funkcjonalne mieszkanie o powierzchni 40.86 m², położone na 1. piętrze w nowoczesnym budynku z windą na Felinie- w świetnej lokalizacji Lublina.

Nowo powstające osiedle wyróżnia się wysokim standardem wykończenia części wspólnych, estetycznym zagospodarowaniem terenu i spokojnym, kameralnym klimatem.

Szczegóły oferty

Powierzchnia: 40.86 m²
Piętro: 1/3
Winda: tak
Balkon: 5,98 m²
Stan: deweloperski
Dostępność: kwiecień 2027
Forma własności: pełna własność z Księgą Wieczystą
Ogrzewanie: miejskie
Podatek PCC: brak (0%)

Układ pomieszczeń

salon z aneksem kuchennym - 16,31 m²
sypialnia - 14,56 m²
łazienka - 4,71 m²
przedpokój - 5,28 m²
balkon - 5,98 m²

Do mieszkania przynależy miejsce postojowe podziemne oraz komórka lokatorska.
Cena za miejsce garażowe podziemne: 45 000zł
Cena za miejsce naziemne: 29 000zł
Cena za metr komórki lokatorskiej: 3,500zł/m2


Atuty inwestycji

✅ nowoczesne osiedle w wysokim standardzie
✅ spokojna i dobrze skomunikowana okolica
✅ blisko centrum Lublina
✅ pełna infrastruktura w pobliżu (sklepy, usługi, szkoły, komunikacja)
✅ doskonała propozycja zarówno do zamieszkania, jak i pod inwestycję

Lokalizacja

Felin - dynamicznie rozwijająca się dzielnica Lublina, położona bardzo blisko centrum. Doskonała komunikacja miejska oraz szybki dostęp do głównych arterii miasta zapewniają wygodę codziennego życia.

Zapraszamy do kontaktu!
Chętnie udzielimy dodatkowych informacji i umówimy prezentację mieszkania.

Kontakt do biura sprzedaży:
Tel. : 533 323 295
E-mail : p.maciag@bdewelopera.pl
Adres : ul. Fabryczna 2, Lublin, Galeria GALA, III piętro

Treści zawarte na stronie służą wyłącznie celom informacyjnym i nie stanowią oferty handlowej w rozumieniu art. 66, ust. 1 Kodeksu Cywilnego.
Przedstawione wizualizacje mają charakter poglądowy. Wygląd budynków oraz zagospodarowanie terenu mogą ulec zmianie na etapie realizacji inwestycji.
Nieprawidłowy adres E-mail