Na sprzedaż lokal - idealny dla nowoczesnego biura

Biuro na sprzedaż
650 454,00 PLN , Pow. 54,66 m2
Drukuj ofertę
Drukuj ofertę
Typ nieruchomości:
Komercyjny
Powierzchnia:
54,66 m2
Typ transakcji:
sprzedaż
Lokalizacja:
Lublin Czechów , Związkowa
Rok budowy:
2026
Piętro:
2 na 3
Numer oferty:
435239
Cena za m2:
11 900,00 PLN

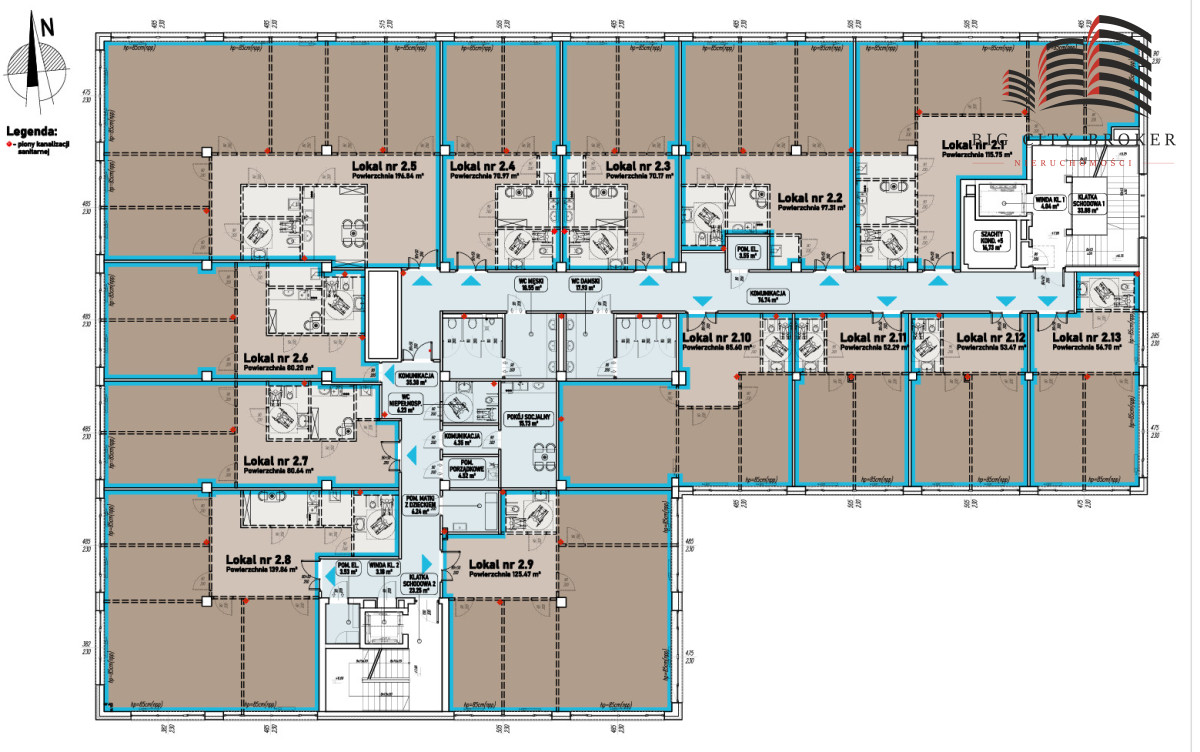
Na sprzedaż lokal 2.12 o powierzchni 54,66 m2 w nowoczesnym budynku usługowo-biurowym w inwestycji Związkowa 14.
Przestrzeń zaprojektowana z myślą o firmach, które cenią funkcjonalność, światło dzienne i prestiżowy adres.

Lokal położony jest na II piętrze, co zapewnia komfort pracy i ograniczenie hałasu. Regularny kształt umożliwia efektywne zagospodarowanie powierzchni - zarówno w formie biura typu open space, jak i z wydzielonymi pomieszczeniami.

Dlaczego warto:
- nowy budynek o nowoczesnej architekturze
- jasne wnętrze dzięki dużym przeszkleniom
- winda i estetyczne części wspólne
- lokalizacja sprzyjająca działalności biznesowej
- idealny pod biuro, usługi doradcze lub siedzibę firmy

To propozycja dla przedsiębiorców oraz inwestorów poszukujących bezpiecznej i przyszłościowej lokalizacji pod działalność gospodarczą.

Termin realizacji budynku: kwiecień 2026 roku

Możliwość dokupienia miejsc postojowych w garażu podziemnym za 45.000 zł 
Zakup bezpośrednio od dewelopera bez dodatkowych marży czy prowizji. 
Wszystkie kwoty to kwoty netto. 



Zapraszam do kontaktu
Opiekun oferty: Paweł Rokicki
tel: 533 386 682


Treść niniejszego ogłoszenia nie stanowi oferty handlowej w rozumieniu Kodeksu Cywilnego. Treść ma charakter informacyjny i zalecamy ich osobistą weryfikację.

Nieprawidłowy adres E-mail