Na sprzedaż lokal - idealny dla nowoczesnego biura

Biuro na sprzedaż
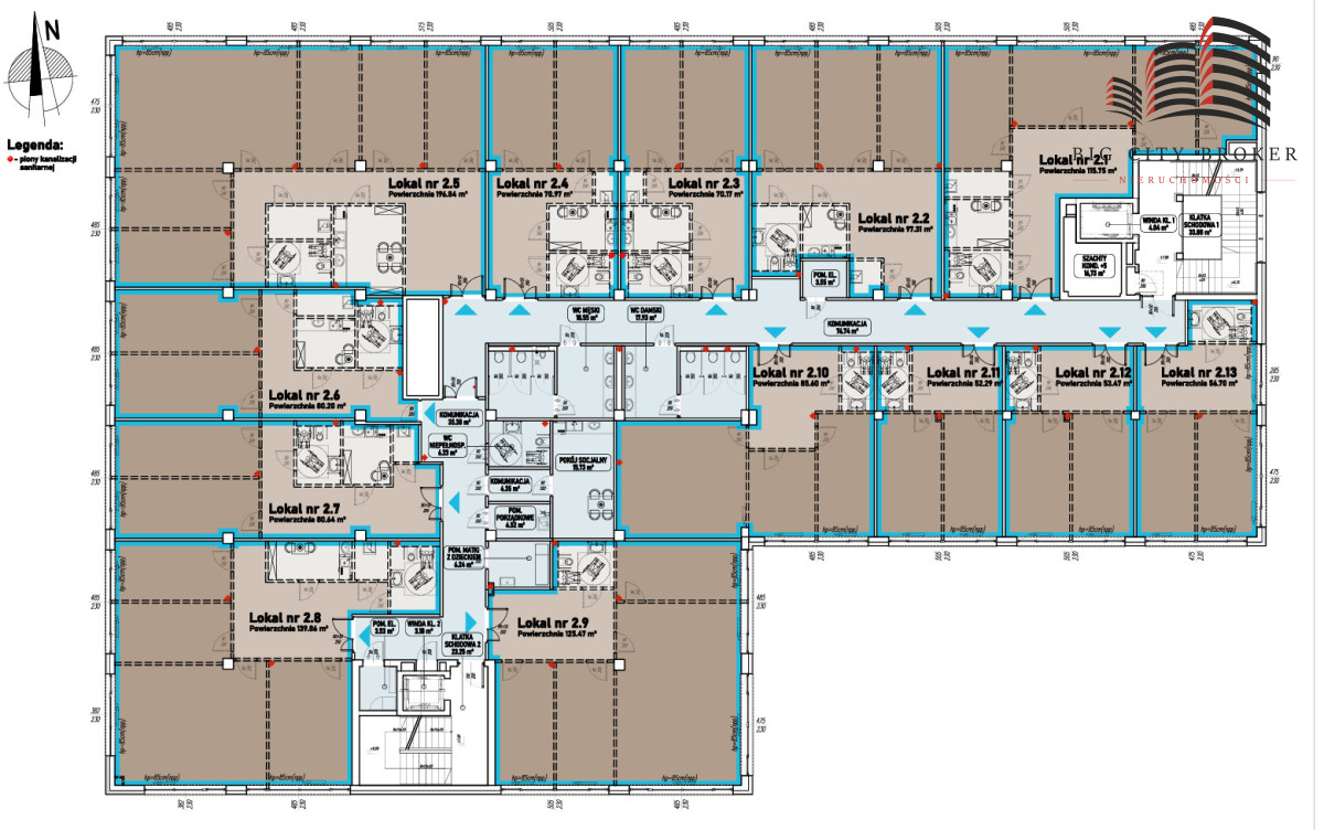
622 251,00 PLN , Pow. 52,29 m2
Drukuj ofertę
Drukuj ofertę
Typ nieruchomości:
Komercyjny
Powierzchnia:
52,29 m2
Typ transakcji:
sprzedaż
Lokalizacja:
Lublin Czechów , Związkowa
Rok budowy:
2026
Piętro:
2 na 3
Numer oferty:
572482
Cena za m2:
11 900,00 PLN
Na sprzedaż funkcjonalny lokal usługowo-biurowy 2.11 w stanie deweloperskim o powierzchni 52,29 m², zlokalizowany na II piętrze nowoczesnego budynku w inwestycji Związkowa 14.

Lokal idealnie sprawdzi się jako nowoczesne biuro, kancelaria, siedziba firmy lub przestrzeń pod usługi profesjonalne. Duże przeszklenia zapewniają doskonałe doświetlenie, a elastyczny układ pozwala na swobodną aranżację - open space lub wydzielone gabinety.

Atuty:
- prestiżowa, nowa inwestycja
- II piętro - komfort i cisza do pracy
- winda i nowoczesne części wspólne
- świetna komunikacja z centrum miasta
- idealny pod biuro lub działalność usługową

To doskonała propozycja dla firm, które szukają reprezentacyjnej i funkcjonalnej przestrzeni w rozwijającej się lokalizacji.
Termin realizacji budynku: kwiecień 2026 roku

Możliwość dokupienia miejsca postojowego w garażu podziemnym za 45.000 zł
Zakup bezpośrednio od dewelopera bez dodatkowych marży czy prowizji. 

Zapraszam do kontaktu
Opiekun oferty: Paweł Rokicki
tel: 533 386 682


Treść niniejszego ogłoszenia nie stanowi oferty handlowej w rozumieniu Kodeksu Cywilnego. Treść ma charakter informacyjny i zalecamy ich osobistą weryfikację.
Nieprawidłowy adres E-mail