Duża działka z możliwością budowy domu

Działka (Budowlana) na sprzedaż
399 000,00 PLN , Pow. 9 823 m2
Drukuj ofertę
Drukuj ofertę
Typ nieruchomości:
Działka
Powierzchnia:
9 823 m2
Typ transakcji:
sprzedaż
Lokalizacja:
Dąbrowica , Legionowa
Numer oferty:
661683
Cena za m2:
40,62 PLN

Na sprzedaż obszerna działka w Dąbrowicy (gmina Jastków).
Pinezka do lokalizacji: 
https://maps.app.goo.gl/UZ1BcwQ7iqTvVbf48

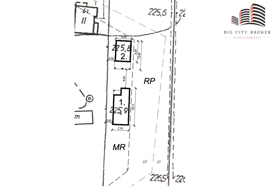
Działka zajmuje powierzchnię 9823 m² (ponad 98 arów).
W dużej części jest objęta Miejscowym Planem Zagospodarowania Przestrzennego, w tym:
635 m² jako MR - mieszkalnictwo rolnicze,
5527 m² jako RP - tereny upraw polowych.
Pozostała część działki nie jest objęta MPZP.

Dojazd do działki odbywa się poprzez drogę asfaltową, publiczną.
Media: prąd, wodociąg, gaz, kanalizacja.

Na terenie, który pozostaje pod zabudowę, istnieje możliwość budowy:
1) Domu o powierzchni 125 m².
2) Garażu o powierzchni 55 m².

W celu uzyskania szczegółów, zapraszam serdecznie do kontaktu pod numerem:
533-386-681
Katarzyna Rokicka

Treść niniejszego ogłoszenia nie stanowi oferty handlowej w rozumieniu Kodeksu Cywilnego. Treść ma charakter informacyjny i zalecamy ich osobistą weryfikację.

Nieprawidłowy adres E-mail